Appartement T4 avec balcon et garage
Prix
376 000 €
Ref 1628-04
Description de l'offre
Appartement T4 avec balcon et garage
Située en plein centre de Faverges, cette résidence allie avec élégance modernité, nature et accessibilité. À proximité immédiate des commerces et à quelques minutes seulement du lac d’Annecy, elle offre un cadre de vie préservé, où calme et verdure se marient pour un quotidien apaisant.
Conçue pour s’intégrer harmonieusement dans un environnement paysager soigné, la résidence est entourée d’espaces verts et d’une mare naturelle, favorisant la biodiversité et le bien-être. Les logements, du studio au 4 pièces, sont pensés pour allier luminosité, fonctionnalité et confort.
Chaque appartement dispose d’un espace extérieur privé: jardin pour les rez-de-chaussée, balcon ou loggia pour les étages.
Garages fermés en sous-sol disponibles.
Livraison du projet: fin 2028.
Pour plus d'informations sur ce projet, qu'il s'agisse d'une résidence principale, d'un pied-à-terre entre lac et montagnes, ou d'un investissement locatif, contactez-nous dès à présent.
Votre agent commercial en immobilier: Emilie LAJARIGE: +33 (0)6 66 08 51 07. RSAC Annecy 883 014 660
Les informations sur les risques auxquels ce bien est exposé sont disponibles sur le site Géorisques:
Description du bien
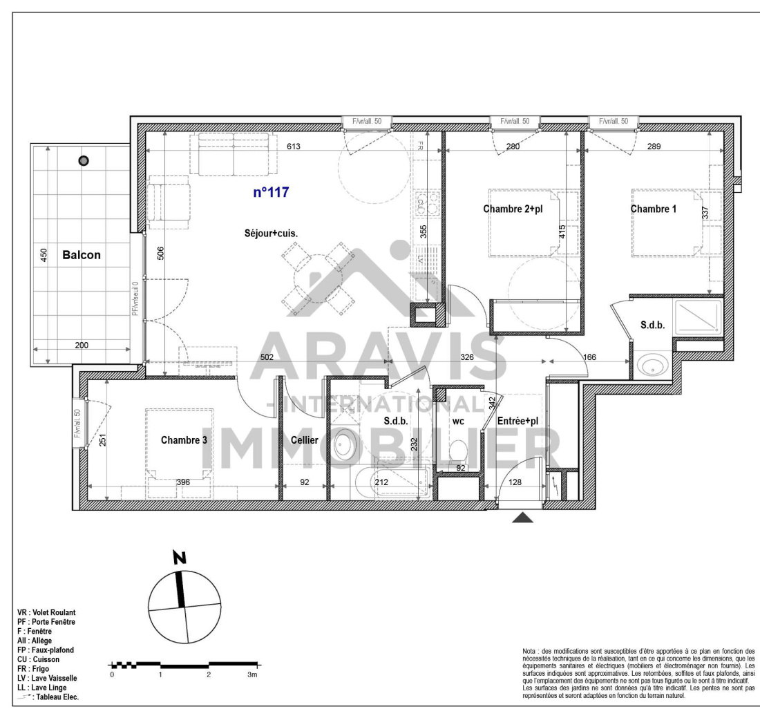
4
Pièces
82.2
m²
3
Chambres
| Label | Value |
|---|---|
| Code postal | 74210 |
| Surface habitable (m²) | 82,20 m² |
| Surface loi Carrez (m²) | 82,20 m² |
| Nombre de chambre(s) | 3 |
| Nombre de pièces | 4 |
| Etage | 1 |
| Nombre de niveaux | 1 |
| Ascenseur | OUI |
| Ville | Faverges-Seythenex (74210) |
| Label | Value |
|---|---|
| Nb de salle de bains | 1 |
| Nb de salle d'eau | 1 |
| Mode de chauffage | Bois |
| Type de chauffage | Radiateur |
| Format de chauffage | TRAD_FORMAT_CHAUFF_URBAIN |
| Balcon | OUI |
| Nombre de garage | 1 |
| Nombre de parking | 1 |
| Exposition | NORD-OUEST |
| Année de construction | 2028 |
| Quartier | hyper centre |
| Label | Value |
|---|---|
| Copropriété | OUI |
| Lot n° | 117 |
| nombre de lots | 56 |
| plan de sauvegarde | NON |
| statut du syndic | pas de procédure en cours |
| Label | Value |
|---|---|
| Prix de vente honoraires TTC inclus | 376 000 € |
| Label | Value |
|---|
Contacter l'agence
* : Les informations recueillies sur ce formulaire sont enregistrées dans un fichier informatisé par La Boite Immo agissant comme Sous-traitant du traitement pour la gestion de la clientèle/prospects de l'Agence / du Réseau qui reste Responsable du Traitement de vos Données personnelles.
La base légale du traitement repose sur l'intérêt légitime de l'Agence / du Réseau.
Elles sont conservées jusqu'à demande de suppression et sont destinées à l'Agence / au Réseau.
Conformément à la loi « informatique et libertés », vous disposez des droits d’accès, de rectification, d’effacement, d’opposition, de limitation et de portabilité de vos données. Vous pouvez retirer votre consentement à tout moment en contactant directement l’Agence / Le Réseau.
Consultez le site https://cnil.fr/fr pour plus d’informations sur vos droits.
Si vous estimez, après avoir contacté l'Agence / le Réseau, que vos droits « Informatique et Libertés » ne sont pas respectés, vous pouvez adresser une réclamation à la CNIL.
Nous vous informons de l’existence de la liste d'opposition au démarchage téléphonique « Bloctel », sur laquelle vous pouvez vous inscrire ici : https://www.bloctel.gouv.fr
Dans le cadre de la protection des Données personnelles, nous vous invitons à ne pas inscrire de Données sensibles dans le champ de saisie libre.
Ce site est protégé par reCAPTCHA, les Politiques de Confidentialité et les Conditions d'Utilisation de Google s'appliquent.
